
电力安装施工服务概述
beat365亚洲体育官方网站专业从事110KV及以下送变电安装工程、电力设备安装、变电站建设等业务,完全具备从设计、安装、施工、试验、检测、维修直到交钥匙的业务全过程的电力安装工程总承包能力。 现已获得建委颁发的送变电工程三级专业承包资质,承装、承修、承试类三级。与此同时,公司自主生产的高低压电气成套设备是送变电安装工程中必须用到的香港开关设备,采用自主生产的设备,能降低工程成本,增强竞争能力,创造品牌影响力。
电力施工服务承诺
beat365亚洲体育官方网站建立了一支强大的技术支持与服务的专业队伍,为客户提供多方面的优质服务,帮助客户正确地选择和使用产品,及时地为客户排除使用中产生的故障。同时,通过广泛收集售后服务中各种问题、意见和要求信息,不断改进和提高我们的设计、制造和服务等工作质量,为客户更好地提供优质的产品和完善的服务。公司承诺,合同签定后,负责协调产品在工程全过程的各项工作并提供技术服务,如工程进度、设计制造、图纸文件、制造确认、包装运输、现场安装、调试验收、维修代理服务等。
安装服务措施
■ 公司提供设计、安装、调试、检测、技术培训 ,专业替用户从供电方案的确定、电气图纸的 设计、电气设备的安装和相关部门送电手续的办理及送电等系统工程(即交钥匙工程)。
■ 在需方供电方案尚未确定时,公司派出多名高级技术工程师会同用电所对整个工程进行全面考察,以确定最佳的供电方案。
■ 供电方案确定后,公司派出专职设计人员与需方专职总工程师进行充分协商,以按需方的要求设计出合理的电气图纸。
■ 设备在生产过程中,为保证产品质量,公司尽可能与需方技术员沟通,并随时欢迎需方代表到我公司生产现场查看设备生产情况。
■ 设备到达工地时,公司将派出专职技术安装人员进行现场安装,配合需方技术人员对设备外观及数量进行现场检验和验收。
■ 在需方许可的情况下,公司将会同设备厂家派出的专职技术服务人员,对需方的技术人员、设备操作和维护人员进行免费培训。
■ 系统维护:采取定期维护计划,对不定期维护或设计修改要求立即响应。
■ 技术支持:提供24小时的技术咨询服务,对重大故障提供24小时的现场支援,一般故障提供日常工作8小时时限内的现场支援,并提供系统所需更换的任何备件。
电缆桥架施工工艺
1、电缆桥架安装工艺流程:
根据施工图确定始端到终端位置,沿图纸标定走向,找好水平、垂直、弯通,用粉线袋或画线沿桥架走向在墙壁、顶棚、地面、梁、板、柱等处弹线或画线,并均匀档距画出支、吊、托架位置。
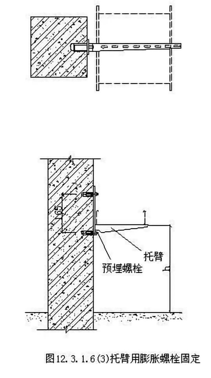
2、预埋铁件或膨胀螺栓
(1)、预埋铁件的自制加工不应小于120mm×80mm×6mm,做法如本标准6.3.7.2图6.3.7.2。其锚固圆钢的直径不小于10mm。
(2)、紧密配合土建结构的施工,将预埋铁件平面紧贴模板,将锚固圆钢用绑扎或焊接的方法固定在结构内的钢筋上;待混凝土模板拆除后,预埋铁件平面外露,将支架、吊架或托架焊接在上面进行固定。
(3)、 根据支架承受的荷重,选择相应的膨胀螺栓及钻头;埋好螺栓后,可用螺母配上相应的垫圈将支架或吊架直接固定在金属膨胀螺栓上,可参见本标准6.3.7.7图表。
3、支、吊架安装
(1) 、支架与吊架所用钢材应平直,无显著扭曲。下料后长短偏差应在3mm范围内,切口处应无卷边、毛刺。
(2)、 钢支架与吊架应焊接牢固,无显著变形,焊接前厚度超过4mm的支架、铁件应打坡口,焊缝均匀平整,焊缝长度应符合要求,不得出现裂纹、咬边、气孔、凹陷、漏焊等缺陷。
(3)、支架与吊架应安装牢固,保证横平竖直,在有坡度的建筑物上安装支架与吊架应与建筑物的坡度、角度一致。
(4)、支架与吊架的规格一般不应小于扁钢30mm×3mm;角钢25mm×25mm×3mm。
(5)、严禁用电气焊切割钢结构或轻钢龙骨任何部位。
(6)、万能吊具应采用定型产品,并应有各自独立的吊装卡具或支撑系统。
(7)、固定支点间距一般不应大于1.5~2m。在进出接线盒、箱、柜、转角、转弯和变形缝两端及丁字接头的三端500mm以内应设固定支持点。
(8)、严禁用木砖固定支架与吊架。
4、桥架安装
(1)、电缆桥架水平敷设时,支撑跨距一般为1.5~3m,电缆桥架垂直敷设时固定点间距不宜大于2m。桥架弯通弯曲半径不大于300mm时,应在距弯曲段与直线段结合处300~600mm的直线段侧设置一个支、吊架。当弯曲半径大于300mm时,还应在弯通中部增设一个支、吊架。支、吊架和桥架安装必须考虑电缆敷设弯曲半径满足规范最小弯曲半径。见表12.3.1.5。

表1 电缆最小允许弯曲半径
(2)、门型角钢支架的安装:梯型桥架沿墙垂直敷设,可使用门型角钢支架,支架的固定应尽可能配合土建施工预埋。如图2,也可在土建施工中预埋开角螺栓,用开角螺栓固定支架如图3,也可以采用膨胀螺栓固定。

图2

图3钢支架预埋地脚螺栓安装

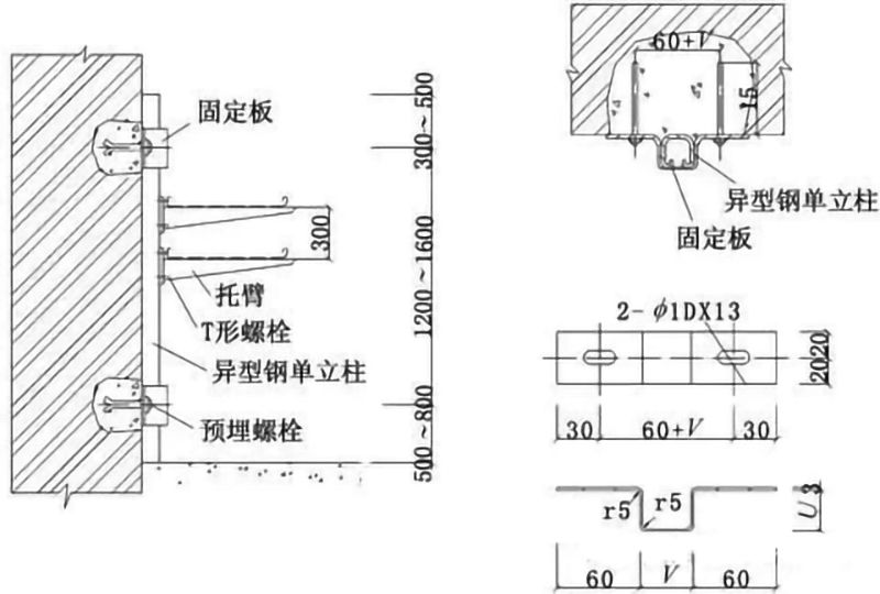
(3)、梯型角钢支架的安装:桥架沿墙、柱水平安装时,托壁需安装在异型钢立柱上,而立柱要安装在梯型角钢支架上,使柱和墙上的桥架固定支架(或托臂)在同一条直线上。制作见图和表4底架与门型架焊接时,焊角高度5mm。

图4 梯型角钢支架制作图
表 12.3.1.5(3)梯型角钢支架制作尺寸表(mm)
(4)、电缆桥架立柱侧壁式安装:立柱是直接支承托臂的部件,分工字钢槽钢、角钢、异型钢立柱;立柱可以在墙上、柱上安装、也可悬吊在梁板上安装。做法在混凝土可预埋铁件;砌体可砌筑预制砌块;也可以采用膨胀螺栓但必须在混凝土强度C20或砖强度在MU10以上的砖砌体上,作法可参照12.3.1.5(4a、b、c、d、e、f)。



图12.3.1.5(4c)异型钢立柱在墙上侧壁安装作法之一



(5)、电缆桥架应敷设在易燃易爆气体管和热力管道的下方,当设计无要求时,与管道的最小净距,符合12.3.1.5(5)的规定。

表示12.3.1.5 (5)与管道的最小净距
5、托臂安装:
托臂是直接支承托盘、梯架单独固定的刚性部件,托臂有螺栓固定可预埋螺栓,也可采用膨胀螺栓,也可卡接,如图12.3.1.6(1)、(2)、(3)、(4)、(5)。





6、桥架安装
(1)、直线段钢制电缆桥架长度超过30m,铝合金或玻璃钢制电缆桥架长度超过15m应设有伸缩节,跨越伸缩缝处设置补偿装置,可用带伸缩节的桥架。
(2)、桥架与支架间螺栓、桥架连接板螺栓紧固无遗漏,螺母位于桥架外侧,当铝合金桥架与钢支架固定时,有相互间绝缘防电化措施腐蚀措施,一般可垫石棉垫。
(3)、敷设在竖井内和穿越不同防火区的桥架,应按设计要求位置,有防火隔离措施,电缆桥架在电气竖井内敷设可采用角钢固定,见图12.3.1.8。

(4)、电缆桥架在穿过防火墙及防火楼板时,应采取防火隔离措施,防止火灾沿线路延燃;防火隔离墙、板,应配合土建施工预留洞口,在洞口处预埋好护边角钢,施工时根据电缆敷设的层数和根数用L50×50×5角钢作固定框,同时将固定柜焊在护边角钢上;也可以先作好框在土建施工中砌体或浇灌混凝土时安装在墙、板中。
7、 桥架的接地,当设计允许利用桥架系统构成接地干线回路时,应符合下列要求:
(1)、 金属电缆桥架及其支架引入或引出的金属电缆导管必须接地(PE)或接零(PEN)可靠,且必须符合下列规范:
①金属电缆桥架及其支架全长,与接地(PE)或接零(PEN)干线相连接不小于2处,使整个桥架为一个电气通路。
②非镀锌电缆桥架间连接的两端跨接铜芯接地线,接地线最小允许截面积不小于4mm2。
③镀锌电缆桥架间连接板的两端可不跨接接地线,但连接板两端不少于2个有防松螺帽或防松垫圈的连接固定螺栓。
(2)、 盘、梯架端部之间连接电阻不应大于0.00033Ω并应用等电位联结测试仪(导通仪)或微Ω表测试,测试应在连接点的两侧进行,对整个桥架全长的两端连接电阻不应大于0.5Ω或由设计决定,否则应增加接地点,以满足要求。接地孔应消除涂层,与涂层接触的螺栓有一侧的平垫应使用带爪的专用接地垫圈。
(3)、 伸缩缝或软连接处需采用编织铜线连接。沿桥架全长另敷设接地干线时,每段(包括非直线段)托盘、梯架应至小有一点与接地干线可靠连接;在接地部位的连接处应装置弹簧垫圈,以免松动。